Fragen? Rufen Sie an
0511 - 64 66 07 80

Doppelhaus in der Wedemark OT Elze

Hier entsteht in Massivbauweise ein Doppelhaus. Das Haus ist voll unterkellert und hat zusätzlich eine gemaurte Garage.
Die Kaufpreise je Haus liegen je nach Ausbauzustand bei 425.000.- € beginnend.

Beschreibung der Immobilie

Das Doppelhaus mit Grundstück bietet viel Platz und besticht durch eine großzügige Raumaufteilung auf jeder Etage.

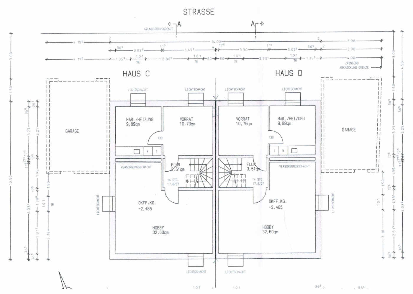
Die Häuser sind voll unterkellert und haben zusätzlich eine gemauerte Garage, durch welche Sie direkt in den Garten gelangen können.

Der Vollkeller mit einer Nutzfläche von ca. 56m² bietet Ihnen genügend Stauraum und Platz für einen Hobby-/ bzw. Partyraum und einem separaten Vorratszimmer und einem Hausanschlussraum. Hier befinden sich die Anschlüsse für Strom, Gas, Heizung, Wasser etc.

Wenn Ihnen das gemeinsame Miteinander wichtig ist und Sie gerne zusammen kochen, während die Familie den Tisch deckt, dann sind Sie hier genau richtig.

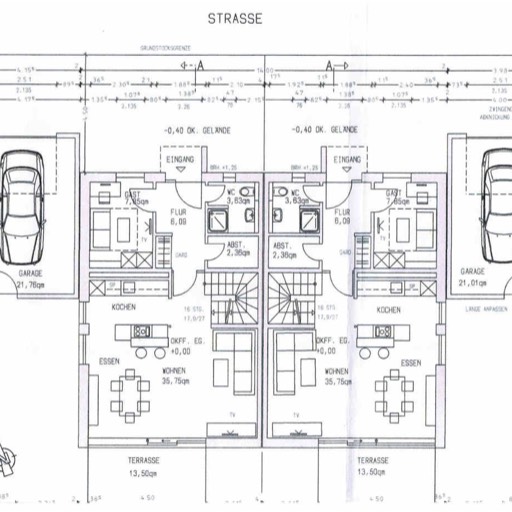
Im Erdgeschoss befindet sich, nach Süden ausgerichtet ein großzügiger offener Wohnbereich, welcher die wichtigsten Lebensbereiche eines Hauses zusammenfasst: Küche, Wohn- und Esszimmer. Die sonnige Terrasse können Sie über eine Schiebetür betreten, welcher den Blick auf den Garten freigibt. Ebenso findet sich im Flur eine Abstellkammer und ein weiteres Zimmer, was als Gästezimmer dienen könnte – direkt gegenüber kommt man zum Gäste-WC inklusive Dusche.

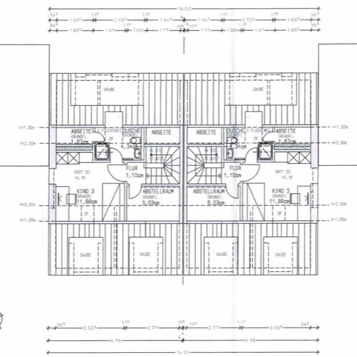
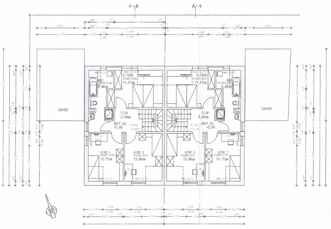
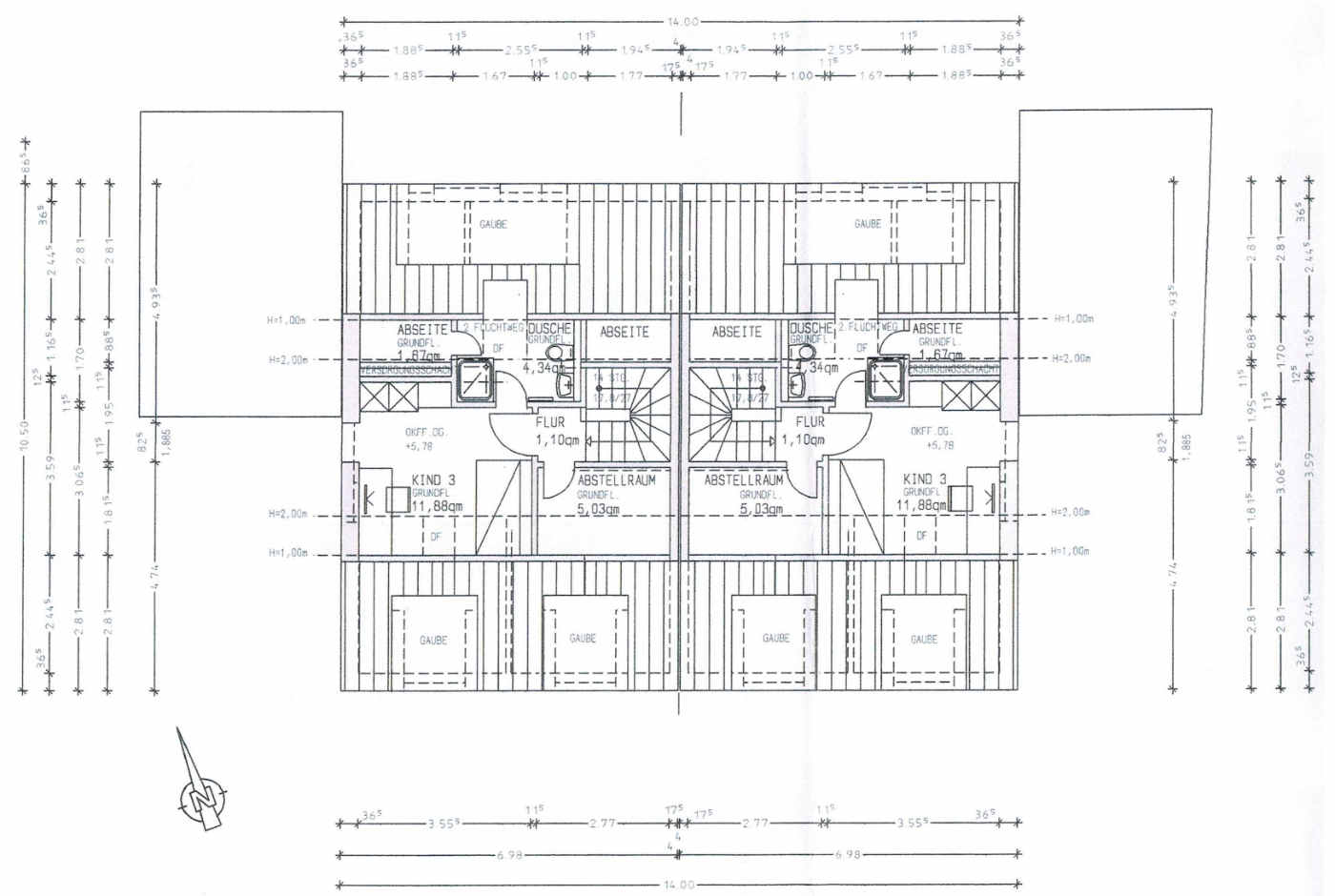
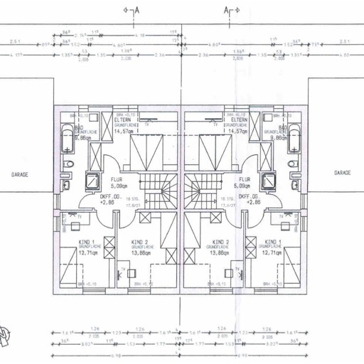
Auch das Obergeschoss bietet viel Platz für zwei Kinderzimmer, ein Elternschlafzimmer wie auch ein großzügiges Badezimmer. Im Dachgeschoss befinden sich zwei weitere Zimmer und ein Duschbad mit Dachfenster und zusätzlicher Abseite.

Lage der Immobilie

Das Doppelhaus befindet sich in der vornehmen und sehr begehrten Wohnregion Wedemark im Ortsteil Elze bei Hannover.

Neben idyllischen Landschaften, vielen historischen Gutsbauernhöfen bietet die Gemeinde eine ausgebaute Infrastruktur wie auch viele Einkaufsmöglichkeiten, Kindergärten und Schulen. Nebenan entsteht ein kleines Einkaufszentrum, wo Sie alles Notwendige für den täglichen Bedarf vorfinden.

Da der Ortsteil Elze zwischen den Autobahn-Anschlussstellen Berkhof und Mellendorf liegt, haben Sie eine gute überregionale Verkehrsanbindung nach Hannover, zum Flughafen Hannover-Langenhagen und/oder nach Celle.

Auch die S-Bahn Haltestelle Bennemühlen ist einen Katzensprung vom Wohnort entfernt. Falls Sie möchten, erreichen Sie nach wenigen Haltestellen Hannover und nach 1-2 Haltestellen Mellendorf und Bissendorf.

Flächenberechnung in m²

Wohnfläche

Erdgeschoß:
Gast 7,85
Flur 6,09
WC 3,63
Abstellraum 2,36
Kochen / Wohnen 35,75
(Summe Erdgeschoß 55,68)

Obergeschoß:
Bad 9,86
Eltern 14,57
Flur 5,09
Kind 1 12,71
Kind 2 13,86
(Summe Obergeschoß 56,09)

Dachgeschoß:
Abseite 1,67
Bad 4,34
Flur 1,10
Kind3 11,88
Abstellraum 5,03
(Summe Dachgeschoß 24,02)

Gesamt 135,79

Nutzfläche

Keller:
HAR / Heizung 9,89
Vorrat 10,79
Flur 3,51
Hobby 32,60
(Summe Keller 56,79)

Garage:
Garage ca. 22,00

(Gesamt Nutzfläche 78,79)


Energieausweis

Energieausweistyp
Bedarfsausweis
Energiebedarf Haus C 52 kWh/(m²*a)
Energiebedarf Haus D 50 kWh/(m²*a)
Energieeffizienzklasse
Haus C B
Energieeffizienzklasse Haus D A
Heizungsart
Erdgas und Sonnenenergie

Shalaj Immobilien
Hann-Kos Projekte GmbH
Hans-Böckler-Str. 30
30851 Langenhagen

Geschäftsführer Sami Shalaj

Tel.: 0511 - 64 66 07 80
Fax: 0511 - 64 66 07 82
Mobil: 0171 - 74 12 18 1
info@shalaj-immo.de